
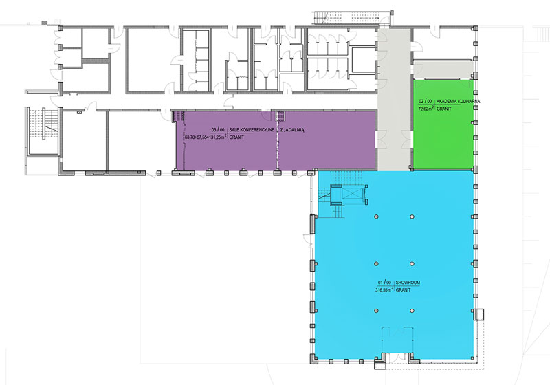
Showroom to wizytówka
Miejsce, w którym pod okiem
Miejsce, w którym po
![]() |
Komputer MacBook Pro |
![]() |
Współpraca z biurem projektowym |
|
Krzysztof Polkowski ARCHITEKTURA – od listopada 2016 r. do stycznia 2017 r. zwycięzca będzie współtworzył kompletny projekt wyposażenia wnętrz Showroomu FRANKE. |